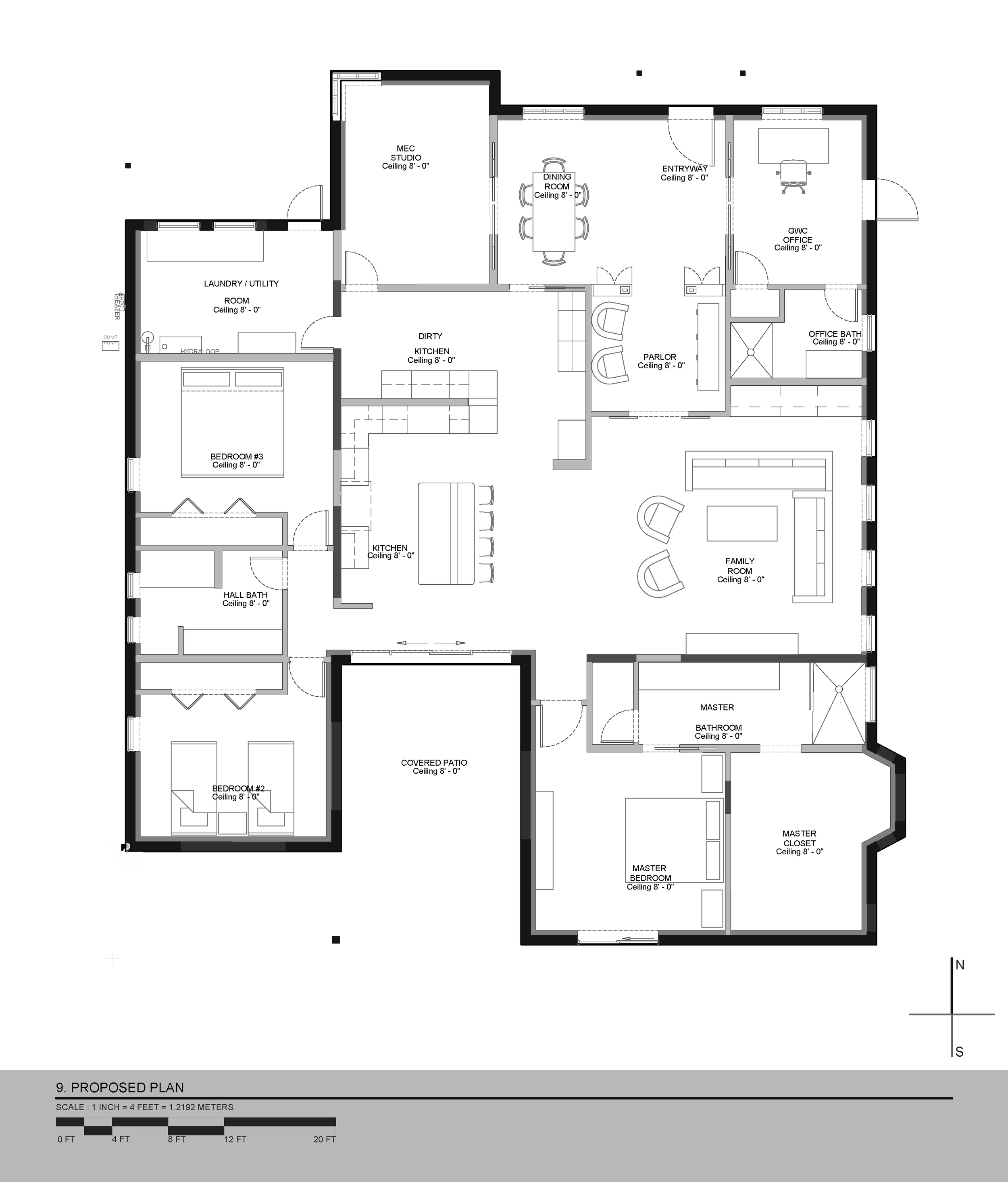
The Coffey family would like their 4000 SF home to be remodeled. The project was designed with the owners in mind and their future years, making their residence ADA friendly. The entire home will be remodeled with minimal exterior changes due to being a historic home located in Phoenix Arizona. Project is currently under construction in the demolition phase.
Previous
Previous
Ojeda Custom Office (Coming Soon)
Next
Next

