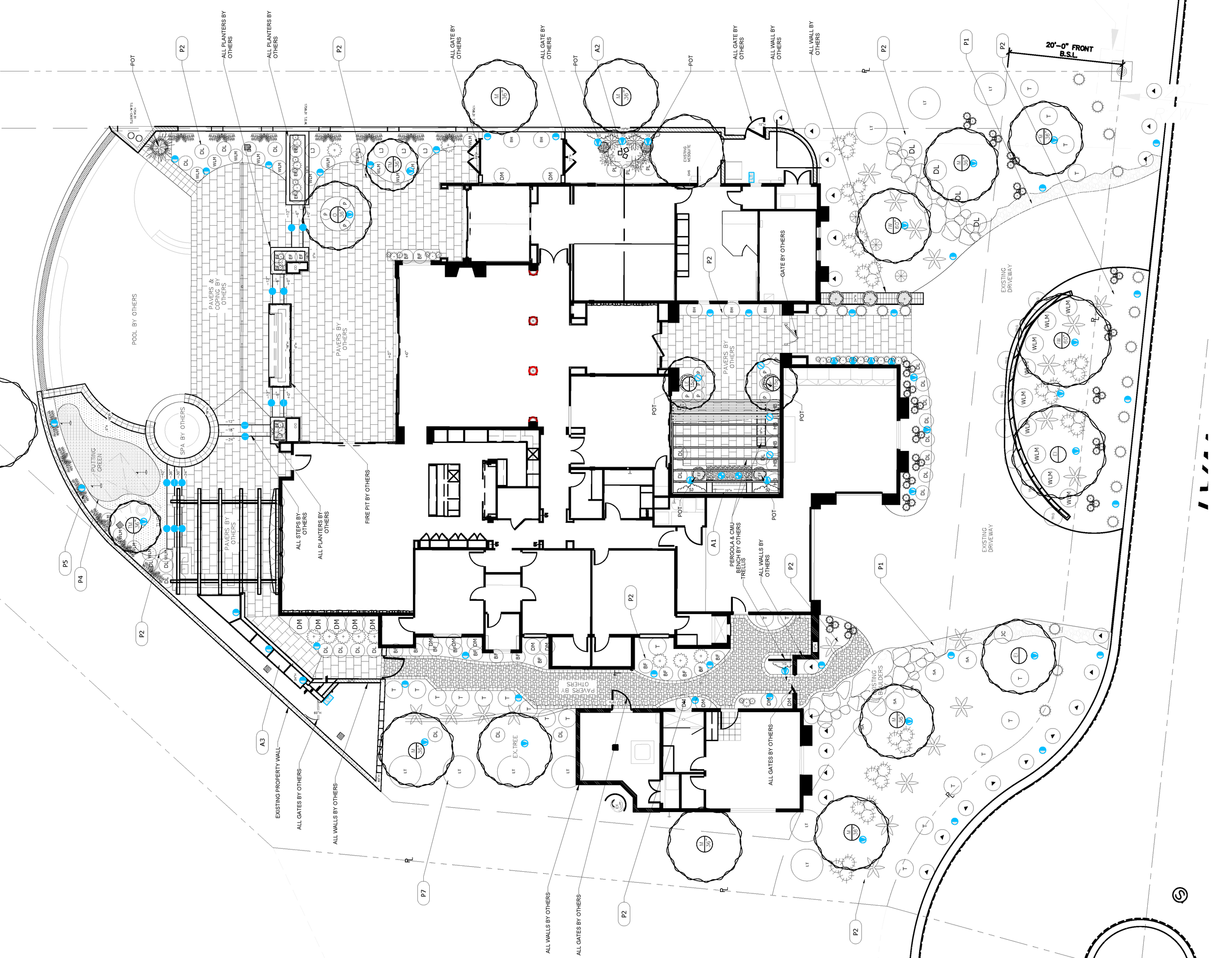
Project is currently under construction, we just finished installing all the irrigation and drainage lines. Tree and plant installation is coming up soon. We are doing the Landscaping as Vazquez’s Landscaping.
Previous
Previous
Casa Otoño (Under Construction)
Next
Next

